- Müyesser Turfan Geçici Erkek Konukevi
- Ayni ve Nakdi Yardımlar
- Yemek ve Kumanya Desteği
- Süt Kuzusu Dağıtımları
- Medikal Malzeme Desteği
- Acılı Günlerinde Ailelerin Yanındayız
- Paylaşmayı Unutmuyoruz
- Öğrencilerimize Destek Veriyoruz
- Buca Sosyal Yaşam Kampüsü Hayata Geçti
- Sokakta Yaşam Mücadalesi Veren İhtiyaç Sahiplerine Destek
- İzmir’e Hijyenik ve Kaliteli Öğünler
- Anne Dayanışma Kartı
Haberler
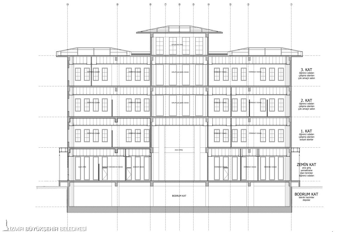
İzmir Büyükşehir Belediyesi, Başkan Tunç Soyer’in gençlik odaklı kent vizyonu kapsamında Türkiye’deki ekonomik krizden en çok etkilenen kesimler arasında yer alan üniversite öğrencilerinin barınma sorunu için harekete geçti. Torbalı Tepeköy Mahallesi’nde belediye hizmet binası olarak projelendirilen fakat inşaatı tamamlanmayan yapı, yükseköğrenim kız öğrenci yurduna dönüştürülecek.
Üniversite öğrenimi için İzmir’e gelen kız öğrencilere hizmet verecek yapı, 285 kişi kapasiteli olacak. Binanın dönüşümünün tamamlanması için yapım ihalesine çıkılacak ve 2024 yılının ilk aylarında inşaata faaliyetine başlanacak.
“Barınma sorunu krize dönüşmüş durumda”
İzmir Büyükşehir Belediye Başkanı Tunç Soyer, gençler için çok kapsamlı bir çalışma programı yürüttüklerini belirterek “Eğitim desteğinden sıcak yemeğe, çamaşırhaneden nakliyeye kadar her konuda yardımcı olmak için çalışıyoruz. Barınma sorunu artık bir krize dönüşmüş durumda. Bu konuda elimizden gelen ne varsa, daha da fazlasını yapmak için gayret ediyoruz” dedi.
Bornova’daki yurt projeleri sürüyor
İzmir Büyükşehir Belediyesi, Bornova’nın Evka 3 ve Evka 4 bölgelerinde de öğrenci yurdu projelerini sürdürüyor. Evka 3’te 822 öğrenci kapasiteli yurt kompleksi için çalışmalar devam ediyor. Proje için yeniden yapım ihalesine çıkılacak. Tesiste öğrencilere sosyal aktivite imkanı sağlanması amacıyla konferans salonu, yemekhane, kafeterya, spor salonu, sanat atölyeleri, kütüphane, otopark gibi farklı fonksiyonlar bir arada tasarlanacak.
Evka 4’de planlanan kız öğrenci yurdunun projeleri tamamlandı, yakın bir zamanda yapımına başlanacak. Yurtta 170 öğrencinin barınma ihtiyacı karşılanacak.
Diğer Haberler
Tüm Haberleri Gör
Kamuoyunun bilgisine
2 Mart 2026 PazartesiKarabağlar Belediyesi iştiraki Karbel AŞ tarafından işletilen, Karabağlar ilçesi 931 parseldeki akaryakıt istasyonuna ilişkin İzmir Büyükşehir Belediyesi tarafından düzenlenen iş yeri açma ve çalışma ruhsatı, ilk derece mahkemesi kararıyla iptal edilmiştir.
İzmir’de “Cesaretin Adı: Kadın” zirvesi başlıyor
2 Mart 2026 Pazartesiİzmir Büyükşehir Belediyesi, Batı Anadolu Sanayici ve İş İnsanları Dernekleri Federasyonu (BASİFED) ve Türkiye Odalar ve Borsalar Birliği (TOBB) İzmir Kadın Girişimciler Kurulu iş birliğinde 9 Mart’ta “Cesaretin Adı: Kadın” zirvesi düzenleniyor.
Başkan Tugay'dan İzmirlilere çağrı: Yarım saatinizi ayırın, bir cana umut olun
2 Mart 2026 PazartesiPako Bakımevi’ni ziyaret eden Başkan Dr. Cemil Tugay, yüzlerce sahipsiz köpek için İzmirlilere seslendi: “Hafta sonu ya da hafta içi yarım saat gezdirin, hem onlar hem siz iyi hissedeceksiniz. Hayalimiz, sokakta sahipsiz tek bir hayvan kalmaması.”
İzmir’e tarih damgalı sevgi yolu
2 Mart 2026 Pazartesiİzmir Büyükşehir Belediye Başkanı Dr. Cemil Tugay'ın öncülüğündeki Güzel İzmir Hareketi, Bayraklı Sevgi Yolu'nu baştan aşağı yeniliyor. Smyrna Höyüğü’nden ilham alan proje ile 335 metrelik aks, hem kültürel vitrin hem de ticari cazibe merkezi olacak.
